纖維束過濾器(生產廠家)
2025-01-10 11:04:20
53
一、產品簡介
我們公司歷經數年的實踐經驗,選用深度的過濾工藝技術跨發出了一款新型節能的凈水器——高效纖維束過濾器。它是采用纖維束為過濾材料,纖維束的直徑可以從幾微米到幾十微米不等,有著體表面積大、吸附能力強、過濾阻力小的特點。很好的解決了顆粒過濾器濾料粒度限制、過濾阻力大等過濾精度問題,大大提高了過濾精度、過濾效率和污染物截留容量。
二、適用范圍
1、可用于電力、石化、化工、化肥、中央空調等行業的循環冷卻水處理。
2、可用于游泳池、洗車、淋浴用水的循環回用水處理。
3、xs型高效纖維束過濾器可用于水產養殖行業的循環水處理和水源水預處理。
4、可用于自來水行業的深層過濾,取代砂濾。
5、可用于純凈水、飲品、飲料、酒類等行業的水源預處理。
6、可用于鍋爐用水的預處理。
7、xs型高效纖維束過濾器用于工業及生活污水處理
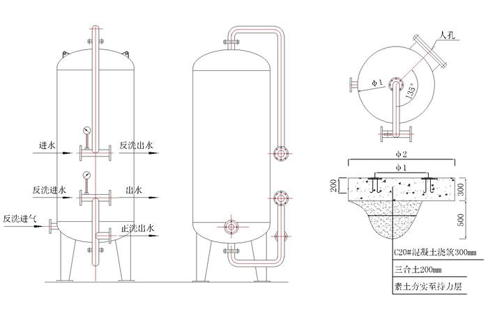
三、設備外形及基礎圖

四.纖維束過濾器選型參數:

